Leave a Message

Thank you for your message. We will be in touch with you shortly.

Giovanni Leopaldi

Broker Associate

Giovanni has been successfully helping people with their real estate needs in the Chicagoland area.

Request Info

1413 N Bosworth Avenue Unit: 1

1413 N Bosworth Avenue Unit: 1, Chicago, IL 60642

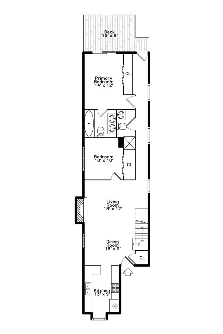
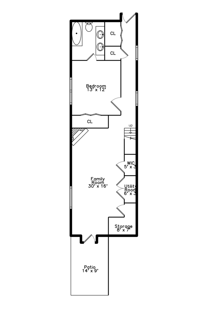
Welcome home to this exceptional, turnkey investment opportunity in East Wicker Park, complete with fantastic tenants secured through August 2026. This spacious residence offers three bedrooms and three full baths-two of which are en-suites-along with two generous living areas, each featuring its own fireplace. The galley kitchen is outfitted with quartz countertops and 42-inch white cabinetry, and the convenience of an in-unit washer and dryer enhances everyday living. Outdoor amenities include a large private patio, a roomy back deck, and two included parking spaces (tandem). Ideally located within walking distance to top restaurants, shopping, the Blue Line, the 606, Pulaski Park, and all the vibrant offerings of Wicker Park and Bucktown, this property truly delivers the best of city living.

Features & Amenities

Interior

Total Bedrooms 3
Total Bathrooms 3
Full Bathrooms 3
Laundry Room Washer Hookup
Flooring Hardwood
Appliances Range, Microwave, Dishwasher, Refrigerator, Washer, Dryer, Disposal
Other Interior Features 1st Floor Bedroom, 1st Floor Full Bath, Storage

Exterior

Stories 3
Water Source Lake Michigan
Parking Assigned, Off Alley, Yes, Owned
Heat Type Natural Gas
Air Conditioning Central Air
Sewer Public Sewer

Area & Lot

Status Active Under Contract
LIVING SPACE 2,342 Sq.Ft.
MLS® ID 12575771
Type Condo
Year Built 1999
School District 299

Financial

SALES PRICE $663,000
REAL ESTATE TAXES $9,110/yr
HOA Fees $225/mo

Work With Us

We are here to provide the most comprehensive real estate experience in the industry by delivering a world-class service centered on integrity, communication and expertise while always placing the needs of our clients first.

Contact Us