Leave a Message

Thank you for your message. We will be in touch with you shortly.

Giovanni Leopaldi

Broker Associate

Giovanni has been successfully helping people with their real estate needs in the Chicagoland area.

Request Info

4028 W Waveland Avenue

4028 W Waveland Avenue, Chicago, IL 60641

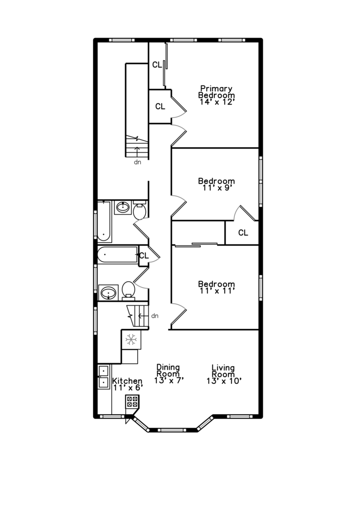
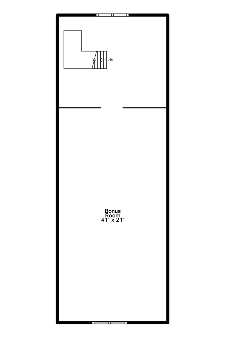
Discover this exceptional single-family home with a versatile in-law arrangement, ideally situated on an extra-wide lot in the highly sought-after Old Irving Park neighborhood. Nestled on a quiet, tree-lined street, this beautifully updated residence offers modern comfort and true move-in readiness. The home boasts two beds, one bath on the first floor, three beds, two baths on the second floor, recent renovations throughout, a spacious 2-car detached garage, and the convenience of in-unit laundry on both the first and second floors. Enjoy being just moments from Disney II Magnet School, scenic parks, popular restaurants, and local shopping. With quick access to I-90/94 and multiple public transportation options, this location perfectly balances neighborhood charm with commuter convenience. Inquiry about several recent updates made to the property as well!**May have potential to finish attic and basement areas!

Features & Amenities

Interior

Total Bedrooms 5
Total Bathrooms 3
Full Bathrooms 3

Exterior

Garage Space 2.0
Water Source Public
Parking Yes, Garage Owned, Detached, Garage
Heat Type Baseboard
Air Conditioning Window Unit(s)
Sewer Public Sewer

Area & Lot

Status Active Under Contract
MLS® ID 12541681
Type Residential
Year Built 1908
School District 299

Financial

SALES PRICE $649,900
REAL ESTATE TAXES $7,846/yr

Work With Us

We are here to provide the most comprehensive real estate experience in the industry by delivering a world-class service centered on integrity, communication and expertise while always placing the needs of our clients first.

Contact Us